Kolter Homes Print Logo
23 PHOTOS Home Brochure
141 Ballyfin Way
  • Carson Collection
  • Julia
  • Homesite 1.141
Total Price: $626,990
Estimate Your Monthly Payment
  • Bedrooms 2
  • Full Baths 2
  • Half Baths 0
  • Stories 1
  • Garage 2
  • Living Area Sq. Ft. 2,616 2,744 Total Sq. Ft.
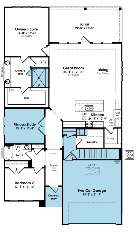
Static Floorplan A

Touch floorplan to view larger

Touch floorplan to view larger

About 141 Ballyfin Way - Move-In: Immediate

The Julia Floor Plan offers 2 bedrooms, 2 baths, and an unfinished basement for future expansion. The gourmet kitchen features top-tier appliances, including a 30" GE gas cooktop, Marengo quartz countertops, and a large island overlooking the Great Room and Dining area. The Owner’s Suite includes a tray ceiling, dual vanities, and a frameless walk-in shower. A second bedroom and a front Study provide separation and privacy from the Owner’s Suite, which is set just off the Great Room. Across the back of the home, enjoy open views from the covered deck—ideal for outdoor relaxation or entertaining. The unfinished basement provides valuable storage and endless opportunities for customization.

Residents of Cresswind at Spring Haven enjoy a private clubhouse with a SmartFit Training Center featuring cardio, weights, and EGYM Smart Circuit Training, plus an arts and crafts room, social ballroom, and more. Outdoor amenities include pickleball and tennis courts, walking trails, a resort-style pool, and an event lawn. A full-time Lifestyle Director ensures a full calendar of activities tailored to the 55+ lifestyle. Ideally located just minutes from downtown Newnan and approximately 35 minutes from Hartsfield-Jackson Atlanta International Airport.

* This Move-In Ready home in Cresswind at Spring Haven is located in Newnan. Some home images may contain additional upgrades, finishes and/or features not included. Floorplan shown is base model and may not include structural options in this home.

To speak with an Online Home Guide call (888) 476-3017

Leave this field empty

I agree that the Kolter Group LLC and its affiliates ("Kolter") and certain third party service providers designated by Kolter may use the information submitted on this form for purposes of online and off-line marketing, which may include providing me with information, surveys, marketing materials, or offers that may be of value to me, which may be provided via mail, email, or phone call. I agree that such calls may be advertising or telemarketing messages and may be made using an automatic telephone dialing system or an artificial prerecorded voice. I understand that my consent to receive such calls is not a condition of purchasing any goods or services from Kolter. Kolter shall comply with their Privacy Policy or Terms of Use, which can be found at www.Kolter.com and by clicking on the link to Privacy Policy or Terms of Use.

Mortgage Calculator

$
%
%

Calculation Results

LOAN SUMMARY ESTIMATES

Down Payment $
Loan to Value Ratio (LTV) %
Loan Amount $

DETAIL ESTIMATES

Monthly Expenses PRINCIPAL & INTEREST
Mortgage Payment $
Tax Expense $
Insurance Expense $
Total Estimated Expense $



Figures on taxes and insurance are estimates - does not include utilities or HOA fees.
Speak with a Kolter Homes Online Home Guide regarding all Down Payment requirements.